1220 Wien_Esslinger Hauptstrasse 42/18

Terrasse WZ 4

2. Dachgeschoss - 4 Sonnenterrassen mit Fernblick - 2 Zimmer - Neubau/Erstbezug - schlüsselfertig mit hochwertiger Ausstattung. Fertigstellung Winter 2025.

 

Fakten

Baujahr: 2024/25
Wohnnutzfläche: 56.68 m2
Zimmer: Wohnküche, Schlafzimmer, Vorraum & Bad
Kelleranteil: 1.75 m2
Terrassen: 23.75 m2
Kaufpreise: KP Eigennutzer € 349.000,- plus NK / KP Anleger € 332.955 zzgl. 20% USt.

Highlights

Mitten in Wien-Essling, wenige Minuten Fußweg zu Nahversorgungsmöglichkeiten, Anbindung an öffentliche Verkehrsmittel, Schulen & Kindergärten.
Lichtdurchflutete Wohnräume mit großen Fenstern.
Jede Wohnung verfügt über eine Außenfläche - Garten, Balkon, Terrasse.
Moderne Fenster mit 3-fach Verglasung und elektrischen Raffstores.
Kostengünstiges Heizen mit Luft-Wärme-Pumpe.
Hochwertige schlüsselfertige Ausstattung.

Karte

© OpenStreetMap und Mitwirkende, CC-BY-SA

Detaillierte Beschreibung

Im Herzen von Wien Essling entsteht derzeit ein Neubau mit 19 schlüsselfertigen Eigentumswohnungen auf Eigengrund. Die hochwertig ausgestatteten 2-4 Zimmer Wohnungen verfügen alle über einen Außenbereich – entweder Garten, Balkon, Terrasse oder Loggia. Alle Einheiten werden schlüsselfertig verkauft. Das Gebäude wird in Massivbauweise in Stahlbeton gemäß den statistischen Erfordernissen oder Blockziegelmauerwerk erreichtet. Alle Zwischenwände werden in Trockenbauweise mit entsprechender Dämmung (Mineralwolle) errichtet.
Geplante Fertigstellung für Frühjahr 2025.

Die angrenzende Kirschenallee mit Schulen, Fußball-/Tennisverein und einer großen Parkanlage mit Spiel- & Sportplätzen ist nur wenige Gehminuten entfernt. Ebenso die Esslinger Hauptstrasse, die nicht nur zahlreiche Möglichkeiten für Nahversorgung bietet, sondern auch den Anschluss zum öffentlichen Nahverkehr hat. Der Nationalpark Lobau ist weniger als 1 km entfernt.
Die Buslinien 26a / 98a nach Aspern und 88a in Richtung Seestadt brauchen nur wenige Minuten bis zu einer U2 Station. Die U2 bringt einen binnen 15-20 Minuten in das pulsierende Wiener Stadtzentrum.
In der nahegelegenen Seestadt (ca. 1.5 km Entfernung) finden Sie die nächste Bücherei, Ärzte für Mensch & Tier, Restaurants und den wunderschönen Asperner See.
.

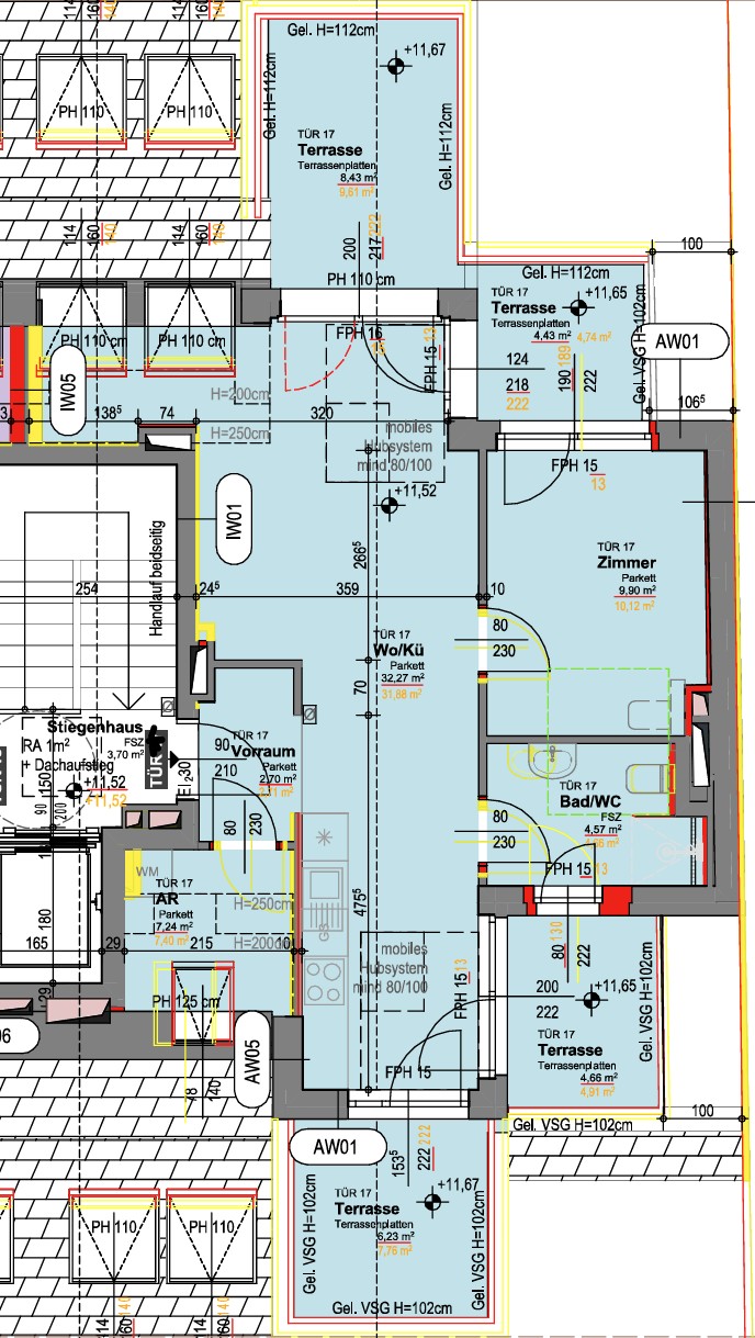
raum­aufteilung

Etagen 2. DG
Räume Wohnküche, Vorraum, Schlafzimmer & Badezimmer
Keller privates Kellerabteil 1.75 m2

DETAILS ZUR AUSSTATTUNG

Kunststoff / Alu Fenster mit 3-fach Verglasung

Beschattung Raffstores

Dachflächenfenster Kipp-/Schwing Fenster von Velux

Wohnungseingangstüre EI²30-C Brandschutz in Sicherheitsklasse WK 1 oder 2 mit Mehrfach Verriegelung, Türspion & Beschläge in Chrom von Firma DANA oder KUNEX

Innentüren glatt mit Beschlägen aus Chrom

Freisprechanlage (ohne Video) von Bticino oder gleichwertig

Ausstattung der Badezimmer mit Sanitärgegenständen von Laufen, Geberit, Grohe und Hans Grohe. Handtuchheizkörper mit E-Patrone.

Vorräume, Badezimmer und WC´s werden mit Feinsteinzeug Minimum Größe 60x60 cm ausgestattet.

Wohnräume, Küche – Parkett (Eiche) wird vollflächig verklebt.

Terrassenbelag – Steinplatten 120 x 60 oder Holz (Thermo Ashe oder Kiefer).

Klimaanlagen Vorbereitung im Dachgeschoss

Heizung mit Energieeffizienter Luft-Wärmepumpe, Heizzentrale im Keller

Regelung der Heizung in den Wohnungen über ein Raumthermostat

Fußbodenheizung in allen Räumen

Kosten

2. Dachgeschoss

TOP 18 – 2 Zimmer, Terrasse & Balkon -> Gesamtfläche ca. 80.43 m²
WNFL ca. 56.68 m² / Außenflächen ca. 23.75 m²,
KP Eigennutzer € 349.000,- plus NK / KP Anleger € 332.955 zzgl. 20% USt.

Nebenkosten
Grunderwerbsteuer: 3,5%
Vertragserrichtungskosten: 1,5 % des Kaufpreises zuzüglich 20% USt. und Barauslagen
Grundbucheintragungsgebühr: 1,1%
Maklerprovision: 3% vom Kaufpreis zzg. 20% Ust

Interesse geweckt?

Für weitere Informationen können sie auch folgende Dokumente herunterladen:

Nebenkosten-Kauf-PP.pdf

Kontakt